Ongoing Projects

  • Home
  • Projects
  • Ongoing Projects
east door

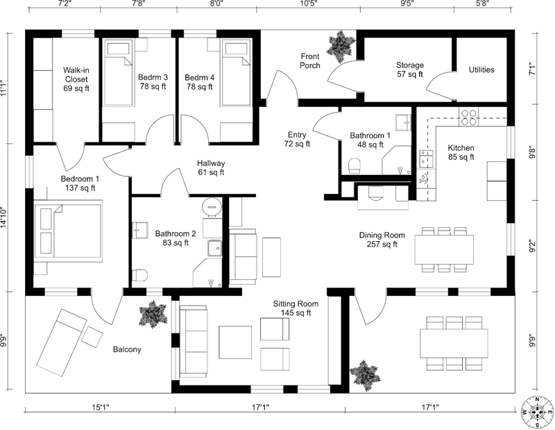
you can see the details in the blueprint if u have any doubt you can contact the eastdoor customer care

© Copyright EastDoor All Rights Reserved. | Made with by Colourmoon
×